Direkt an der Tram;helle und effiziente Büroflächen

Weißenseer Weg 35, 13055 Berlin - Hohenschönhausen

Das von zwei Türmen flankierte Tor gewinnt seine optische Attraktivität durch das aufwendige Zusammenspiel der Werkstoffe Naturstein und Aluminium. Direkt vor dem Objekt halten verschiedene Straßenbahnlinien mit günstiger Anbindung an U- und S-Bahn

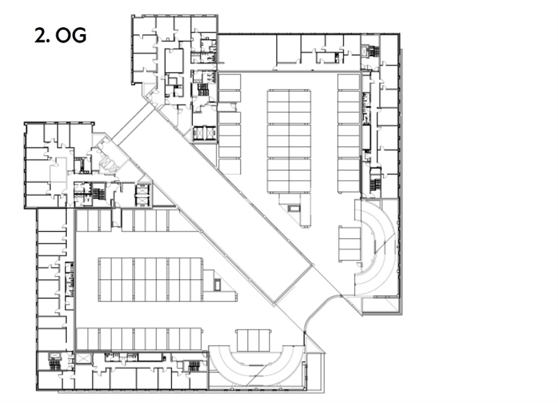
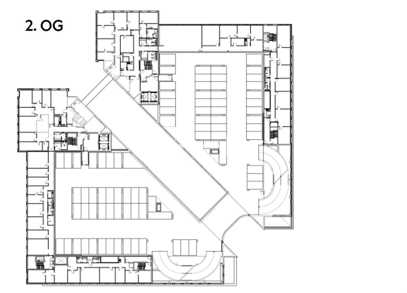
Bürofläche 2.000,00 m²
Teilbar ab 251,00 m²
Miete pro m² 15,00 €/m²
Käuferprovision Für den Mieter provisionsfrei.
Gesamtfläche:
2.000,00 m²
Bürofläche:
2.000,00 m²
Büro Teilfläche:
251.00
Miete pro m²:
15,00 €/m²
Käuferprovision:
Für den Mieter provisionsfrei.
Käuferprovision mit MwSt.:
Ja
Küche:
kueche_praktische Teeküche vorhanden
Nutzungsart:
Gewerbe
Objektart:
Bürofläche
Teilbar ab:
251,00 m²
Etage:
2
Baujahr:
1997
Verfügbar ab:
sofort
Fassade:
Glas und Aluminium
Sanitaer:
funktionale Ausstattung
Beleuchtung:
bildschirmarbeitsplatzgerecht
Bodenbelag:
Teppichboden
Verkabelung:
Fensterbankkanäle
Kuehlung:
natürliche Belüftung
Sonnenschutz:
innenliegend
Aufzug:
Personenaufzug
Objekt_Kennung:
FG 114012
Nachbarschaft:
6
entf_sbahn:
1500 m
entf_ubahn:
3000 m
entf_bus:
30 m
entf_autobahn:
6 km
lage_bag:
Das Büro- und Geschäftshaus liegt nahe der Schnittstelle der Bezirke Hohenschönhausen, Weißensee, Lichtenberg und Prenzlauer Berg. Ein buntes Nebeneinander von mehrgeschossigem Wohnen und Gewerbe, darunter auch eine moderne Hotelanlage, prägt das Umfeld, in dem der Volkspark Prenzlauer Berg und die Grünanlagen um den Fennpfuhl viel Raum für Freizeit und Erholung bieten. Hervorzuheben ist das gegenüber liegende Sportforum Hohenschönhausen, Europas größtes Sport- und Trainingszentrum mit dem bedeutendsten deutschen Olympiastützpunkt und dem Institut für Sportwissenschaften der Humboldt-Universität.

Ausstattung

Fassade: Glas und Aluminium
Sanitaer: funktionale Ausstattung
Küche: kueche_praktische Teeküche vorhanden
Beleuchtung: bildschirmarbeitsplatzgerecht
Bodenbelag: Teppichboden
Verkabelung: Fensterbankkanäle
Kuehlung: natürliche Belüftung
Sonnenschutz: innenliegend
Aufzug: Personenaufzug

Objektbeschreibung

- Baujahr 1997
- Sanierung 2022
- Immobilie wird derzeit komplett modernisiert
- Grundrissgestaltung nach Mieterwunsch

Lage

Das Büro- und Geschäftshaus liegt nahe der Schnittstelle der Bezirke Hohenschönhausen, Weißensee, Lichtenberg und Prenzlauer Berg. Ein buntes Nebeneinander von mehrgeschossigem Wohnen und Gewerbe, darunter auch eine moderne Hotelanlage, prägt das Umfeld, in dem der Volkspark Prenzlauer Berg und die Grünanlagen um den Fennpfuhl viel Raum für Freizeit und Erholung bieten. Hervorzuheben ist das gegenüber liegende Sportforum Hohenschönhausen, Europas größtes Sport- und Trainingszentrum mit dem bedeutendsten deutschen Olympiastützpunkt und dem Institut für Sportwissenschaften der Humboldt-Universität.

Umgebung und Nachbarschaft

Nachbarschaft 6
entf_autobahn 6 km
entf_bus 30 m
entf_sbahn 1500 m
entf_ubahn 3000 m

Basis AG Immobilienberatung

Herr Florian Grauduschus

Immobilienökonom (IREBS) Office Letting

Telefon: +49307007669-81

E-Mail:

Was ist die Summe aus 8 und 3?